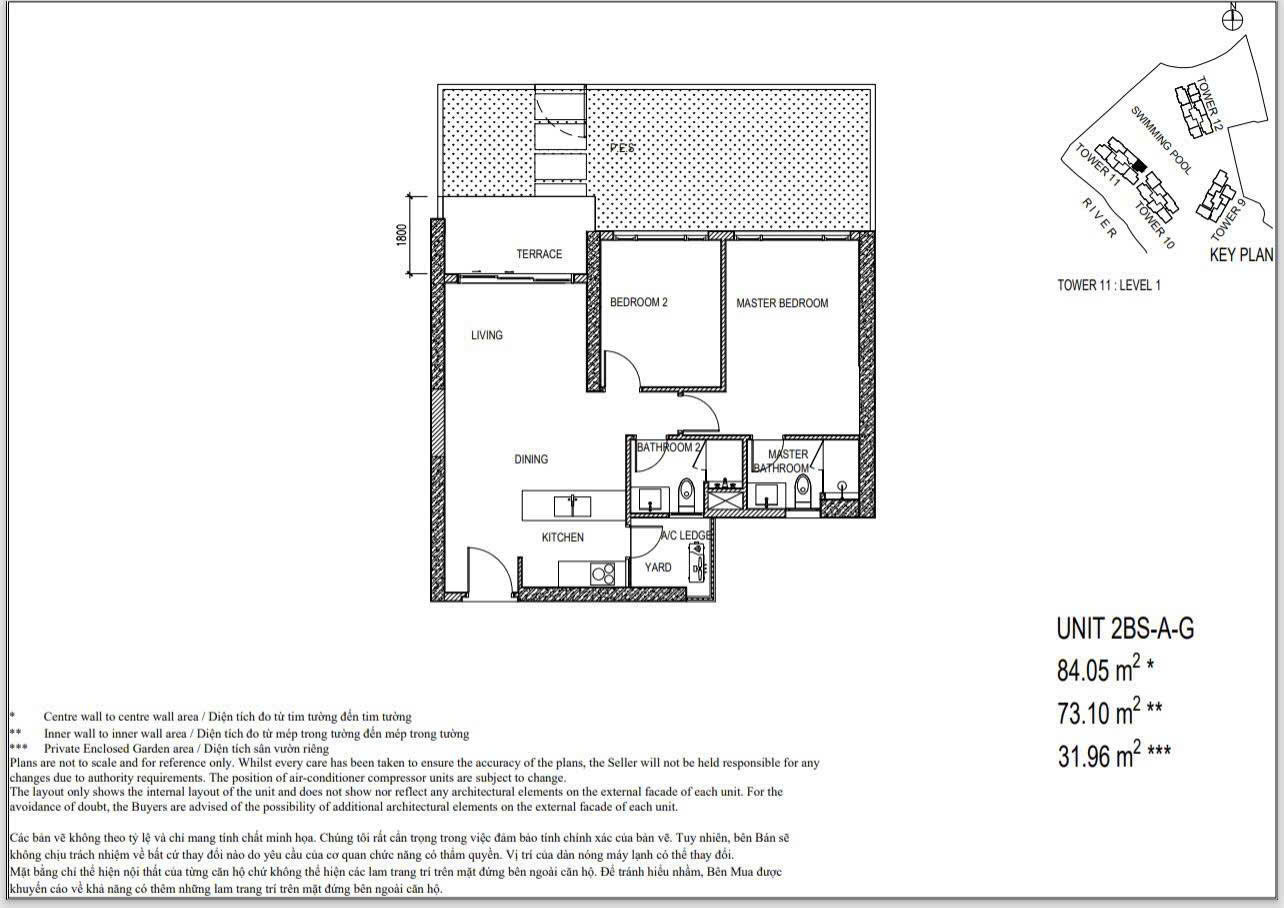
| Giá bán: 9,6 tỷ | Giá cho thuê: Chưa cập nhật |
| Block: Tháp 11 | Số phòng ngủ: 2 | Diện tích: 118 |
Bán căn hộ siêu VIP, có sân vườn riêng, ngay tầng tiện ích.
Diện tích: 118m² | 2 PN 2 WC Banconly siêu to siêu đẹp | View toàn cảnh biển nhân tạo và sông. Một bước tận hưởng tất cả tiện ích.
Căn hộ bàn giao thô hoàn thiện cơ bản
Tiện ích 5 sao: Hồ bơi vô cực, gym, BBQ, khu vui chơi, lối dạo ven sông,
Vị trí kim cương: Kết nối Phú Mỹ Hưng Quận 1 chỉ trong vài phút.
Giá rẻ nhất khu vực chỉ: 9,6 tỷ ( đã bao gồm thuế phí và có thương lượng )
Liên hệ ngay: 0788 253 939 (Quyết Thắng) Trân trọng.
